新格尔时刻与您分享消息
“ 将想法与焦点与您一起共享”
如果没有测量大师...测量门窗有多困难

新格尔门窗设计软件小编相信,对于很多门业经销商朋友们来说,量门成为了一个老大难的问题。面对每天不同的工地上奔波,现场的量门定尺,一个疏忽量错了,还要反复现场测量,如果没有便捷的测量大师,那可以说真的是折磨啊。
量前注意事项
安装门之前的门洞测量工作非常重要!第一手了解客户的门洞现场,判断定门尺寸,为客户推荐可定制的款式,体现专业度和服务高效化尤为重要。

1第一步:准备好量门前的工具:鲁班尺、水平仪、纸、 笔等必须要的工具,方便现场测量和记录。2第二部:对于现场情况的了解:①了解现场水电改造以及墙体改造完工等情况。②水平线具备,铺地板的房间需要做好地面找平。③确定平墙是否要增加墙垛,以及现场限制。3第三部:开向对现场的尺寸的测量以及记录。
量门洞方法
1、规则门洞
测门洞高度:依次测高度(由地面到门洞顶端)左、中、右 3个点,内外洞口都要测量,取最小值。
测门洞宽度:依次测宽度上、中、下 3个点,两侧都需测量,取最小值。3.测门洞厚度:分别测量左右墙面及顶墙面的厚度,取最大值最后将测量结果记在本子上面。
注意:在测量过程中要注意地面处理情况,要预留出地面装修材料的厚度以备所需。
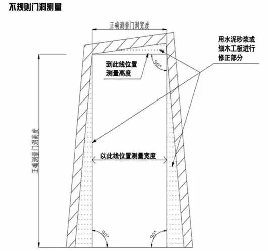
2不规则门洞
门扇的测量: 门扇=门框内空—预留缝隙
门扇的宽度:水平测量门框内空距离,选取五个以上的测量点进行测量,其中最小值为(减预留缝隙)为门扇宽度。
门扇的高度:垂直测量门框内空距离,选取三个以上的测量点进行测量,其中最小值(减预留缝隙)为门扇高度。门业视界,你的朋友。

量门注意事项
1.减去新增门垛宽度:若门洞左侧或右侧没有门垛,或在较薄墙体上开门洞,则需要安装假门垛,假门垛厚度与对面装门墙面厚度一致。那么门洞实际宽度=门洞原宽度-新增门垛宽度。
2.预留地面材料厚度:在测量毛坯房时,需要在测量得出的数据基础之上,再加上地板或瓷砖厚度。

建议客户,先装门,再装地板。有助于保护地板,免得地板安装师傅跑两趟增加安装费用。要记得预留好尺寸,多考虑现场尺寸以及限制,仔细最为关键。

好了,今天讲述的有关现场测量的方式,新格尔门窗设计软件小编就为大家讲到这里,我们下期再见!
2021-08-16 15:57:27 thinker 阅读量:928
如果没有测量大师...测量门窗有多困难

新格尔门窗设计软件小编相信,对于很多门业经销商朋友们来说,量门成为了一个老大难的问题。面对每天不同的工地上奔波,现场的量门定尺,一个疏忽量错了,还要反复现场测量,如果没有便捷的测量大师,那可以说真的是折磨啊。
量前注意事项
安装门之前的门洞测量工作非常重要!第一手了解客户的门洞现场,判断定门尺寸,为客户推荐可定制的款式,体现专业度和服务高效化尤为重要。

1第一步:准备好量门前的工具:鲁班尺、水平仪、纸、 笔等必须要的工具,方便现场测量和记录。2第二部:对于现场情况的了解:①了解现场水电改造以及墙体改造完工等情况。②水平线具备,铺地板的房间需要做好地面找平。③确定平墙是否要增加墙垛,以及现场限制。3第三部:开向对现场的尺寸的测量以及记录。
量门洞方法
1、规则门洞
测门洞高度:依次测高度(由地面到门洞顶端)左、中、右 3个点,内外洞口都要测量,取最小值。
测门洞宽度:依次测宽度上、中、下 3个点,两侧都需测量,取最小值。3.测门洞厚度:分别测量左右墙面及顶墙面的厚度,取最大值最后将测量结果记在本子上面。
注意:在测量过程中要注意地面处理情况,要预留出地面装修材料的厚度以备所需。
2不规则门洞
门扇的测量: 门扇=门框内空—预留缝隙
门扇的宽度:水平测量门框内空距离,选取五个以上的测量点进行测量,其中最小值为(减预留缝隙)为门扇宽度。
门扇的高度:垂直测量门框内空距离,选取三个以上的测量点进行测量,其中最小值(减预留缝隙)为门扇高度。门业视界,你的朋友。

量门注意事项
1.减去新增门垛宽度:若门洞左侧或右侧没有门垛,或在较薄墙体上开门洞,则需要安装假门垛,假门垛厚度与对面装门墙面厚度一致。那么门洞实际宽度=门洞原宽度-新增门垛宽度。
2.预留地面材料厚度:在测量毛坯房时,需要在测量得出的数据基础之上,再加上地板或瓷砖厚度。

建议客户,先装门,再装地板。有助于保护地板,免得地板安装师傅跑两趟增加安装费用。要记得预留好尺寸,多考虑现场尺寸以及限制,仔细最为关键。

好了,今天讲述的有关现场测量的方式,新格尔门窗设计软件小编就为大家讲到这里,我们下期再见!